Overview

M3M BROADWAY SECTOR 71 GURGAON

M3m new commercial Broadway is a unique one-stop destination for eating, shop, play. That offers a heady mix of high-end retail shops, world-class commercial spaces, studio apartments, multiplex on 3rd & 4th floor, game zone, fun zone on 3rd floor, terraces restaurant on first, second floors at sector 71 Gurgaon prime location.

Property owners looking for office space in Gurgaon might check out the commercial project in the M3M Broadway food court. This is a newly developed commercial hub, where you can enjoy all the necessary business amenities. This will be your perfect place, where you can buy your office space or a retail store to expand your business. A well-organized public transport system here ensures a quick commute. Both your employees and customers would be able to get across to this place quickly.

You can choose a story in a business on the lease or rent at the M3M broadway floor plan and brochure. There are numerous business areas in India where there are expanded rates to purchase and offer property which property prices are increasing, you may also earn a great profit if you resell your space after a few years.

M3M Broadway Key Features

Architect Designed by Bentel Associates International

Excellent Arterial Connectivity

Large Open Space

Double Heights Shops

10 Screen Mulitplex with 1600 Seats

2 Fronts - SPR Facing

M3M Broadway Amenities

  • Gym
  • Bar-Lounge
  • Garden
  • Car Parking
  • Amphitheatre
  • Barbeque
  • Cafe Lounge
  • Mini Theatre
  • Multi-Purpose Court
  • Restaurant
  • Salon
  • Squash Court
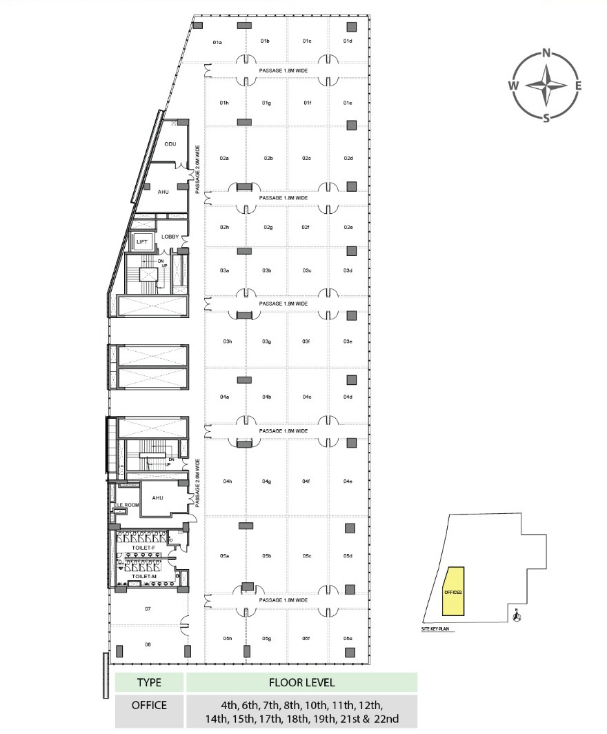
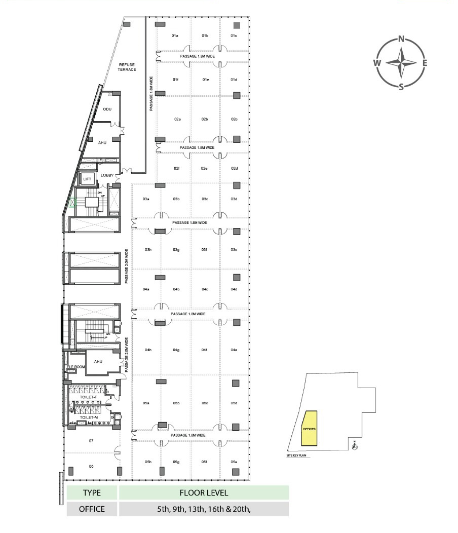
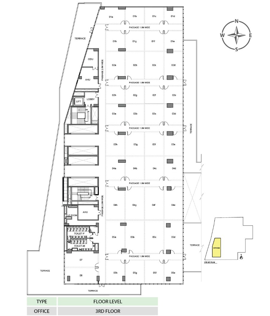
  • Price List

     

    TYPE SIZE SQ. FT. PRICE BOOKING AMOUNT
    Office Space 650 58.50 Lakh* On Request
    Retail Space (Second Floor) 600 71.40 Lakh* On Request
    Retail Space (Third Floor) 600 71.70 Lakh* On Request
    Retail Space (Upper Ground Floor) 500 79.50 Lakh* On Request
    Retail Space (First Floor) 600 83.40 Lakh* On Request
    Retail Space (Lower Ground Floor) 500 1.08 Cr* On Request
    Retail Space (Ground Floor) 1500 4.19 Cr* On Request

    Location Map

    Video tour

    Similar Properties

    Check out some of our listed properties

    Contact us

    For getting the accurate information the interested parties are recommended to address to realtor for consultation.

    Gurgaon Head Office

    Unit No 108, First Floor, Tower 1, DLF Corporate Green, Sector 74A, SPR, Gurugram, Haryana -122004


    +919873049873
    info@bigsharkdeveloper.com

    WRITE TO US

    Do you have any questions? Write to us! Today you have the opportunity to acquire the best realty of the capital.